2020年职业教育活动周 建筑工程系员工优秀作品线上作品展
发布时间:2020-11-12 动态浏览次数:1755

作品展.png

根据《福建省教育厅等十部门关于做好2020年职业教育活动周相关工作的通知》的文件要求,大力倡导劳动光荣、技能宝贵、创造伟大的时代风尚,进一步宣传职业教育发展成果、典型经验和重要贡献,营造全社会关心支持职业教育的良好氛围,我系收集整理了系部近年来各专业的员工优秀作品,进行线上展览。

以下展示的是建筑室内设计专业的优秀员工作品:


2018级建筑室内设计2班 邹彦洺 建筑临摹作业

家居快题设计临摹作业.jpg

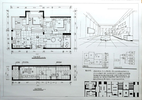
2018级建筑室内设计2班 邹彦洺 家居快题设计临摹作业

咖啡厅快题设计.jpg

2018级建筑室内设计2班 邹彦洺 咖啡厅快题设计作业

丹青画廊.jpg

2018级建筑室内设计2班 邹彦洺 丹青画廊快题设计作业

家居快题设计.jpg

2018级建筑室内设计2班 邹彦洺 家居快题设计作业

5.jpg

6.jpg

2018级建筑室内设计2班 邹彦洺 3DmaxVR作业

2018级建筑室内设计1班 陈思煌 办公空间作业

以下展示的是系部员工参赛获奖作品:

第十二届全国老员工广告艺术大赛 一等奖

作品名称:记录我和小苏的这一刻

作者:2018级建筑室内设计2班 邹彦洺

第十二届全国老员工广告艺术大赛 二等奖

作品名称:黑糖奶茶-自然中的好味道

作者:2018级建筑室内设计VR班 黄嘉靖

第十二届全国老员工广告艺术大赛 二等奖

作品名称:青春的色彩,有你活力每一天

作者:2018级建筑室内设计1班 朱楠

朱楠 庄艺 陈淑萍.jpg

全国老员工第九届海洋文化创意设计大赛 佳作奖

作品名称:风厢海边民宿

作者:2018级建筑室内设计 1班 朱楠、陈淑萍、庄艺

颜志松 曾文滨 华真.jpg

全国老员工第九届海洋文化创意设计大赛 佳作奖

作品名称:海岛度假民宿设计——聚落集装箱组合

作者:2018级建筑室内设计2班 颜志松 华真 曾文滨

薛理健朱秀秀马子真.jpg

全国老员工第九届海洋文化创意设计大赛 佳作奖

作品名称:魔方酒店

作者:2018级建筑室内设计2班 朱秀秀 薛理健 马子真

林铭森,罗高云,姜锦华.jpg

全国老员工第九届海洋文化创意设计大赛 佳作奖

作品名称:海上英雄电竞屋

作者:2018级建筑室内设计1班 林铭森 姜锦华 罗高云

龚少鑫-谢忠垲-朱章泽.jpg

全国老员工第九届海洋文化创意设计大赛 佳作奖

作品名称:北极降落伞博物馆

作者:2018级建筑室内设计2班 朱章泽 龚少鑫 谢忠垲